
Honda Xr200 Wiring Diagram, Skygo150 Voltage Regulator for XR200/Actual Wiring/Honda XR200 Modified/Supermoto/DIY Garage PH, 10.03 MB, 07:18, 10,383, D I Y Garage PH, 2021-01-23T08:48:03.000000Z, 19, Iam looking for a 1982 honda xr200 wiring diagram, www.justanswer.com, 904 x 703, jpeg, wiring diagram 1982 honda xr200 xt200 yamaha manual iam motorcycle looking 1981 mechanic bikee wire, 20, honda-xr200-wiring-diagram, Anime Arts
1999 buick century wiring diagram. To properly read a electrical wiring diagram, one offers to learn how the particular components in the system operate. For instance , if a module is usually powered up and it sends out a new signal of half the voltage and the technician will not know this, he would think he has a challenge, as he would expect. This simplified ignition system wiring diagram applies to the following vehicles:
This typical circuit diagram includes the following circuits: 7x crankshaft position (ckp) sensor (low resolution sensor). 24x crankshaft position (ckp) sensor (high resolution sensor). Camshaft position (cmp) sensor. Vehicle wiring details for your. This information outlines the wires location, color and polarity to help you identify the proper connection spots in the vehicle. 96 buick century won't pass imisions code p1441. Check the hoses for holes or broken disconnected hoses also check the fuel cap emissions diagram under the hood will give u the location of the evep purge solenoid if all checks ok then replace the soienoid and clear the codes. This video demonstrates the buick century complete wiring diagrams and details of the wiring harness.
I bought a 1996 Buick Century. The doors do not lock when putting the car in gear. When turning

I bought a 1996 Buick Century. The doors do not lock when putting the car in gear. When turning
1996 Buick Wiring Diagram - All of Wiring Diagram

1996 Buick Century Wagon - drivers door window All the windows are sluggish. Front two don't

1996 Buick Century Wiring Diagram Pics - Wiring Diagram Sample

1996 Buick Lesabre Radio Wiring Diagram : 1997 Buick Century Radio Wiring Diagram Wiring

1996 Buick Century Wagon - drivers door window All the windows are sluggish. Front two don't

1996 Buick Lesabre 3.8L FI OHV 6cyl | Repair Guides | Wiring Diagrams | Wiring Diagrams

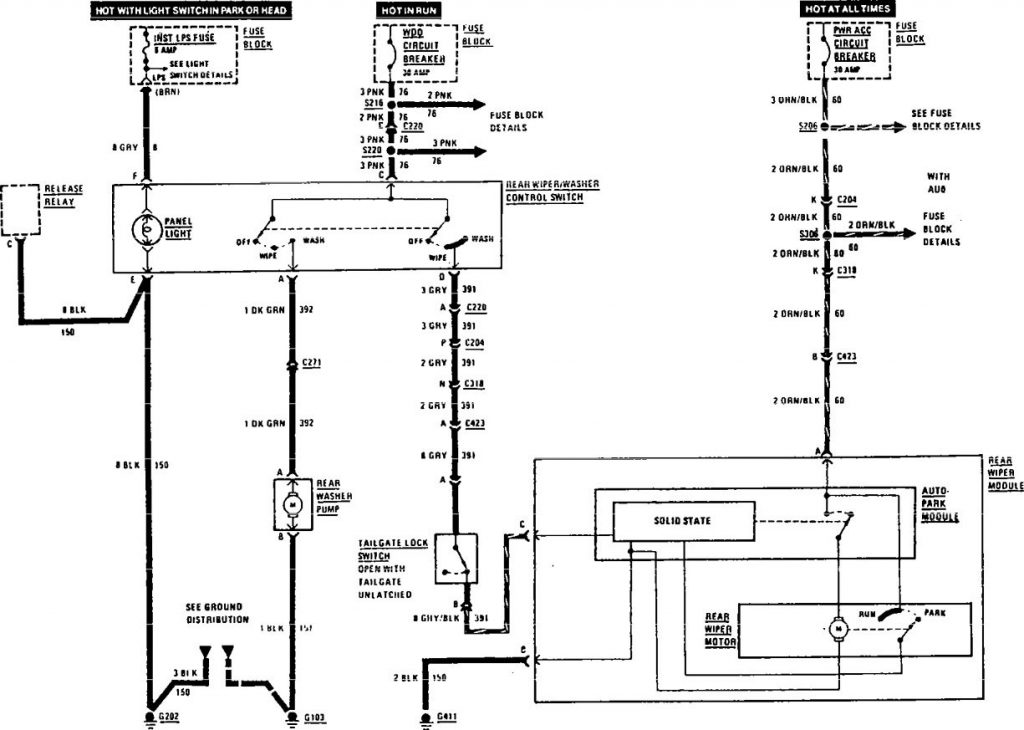
Buick Century (1991) - wiring diagrams - wiper/washer - Carknowledge.info

17+ 1996 Ford F150 Engine Wiring Diagram - Engine Diagram - Wiringg.net | Buick lesabre, Buick

Post a Comment
Post a Comment